Hanghaus
Haus Cubus

-Das Projekt ist eine Konzeptstudie, Grundrisse, Visualisierungen sowie eine grundlegende technische Dokumentation
-Architektur- und Bauplanung - Umfang des architektonischen Entwurfs
-Technische Planung - Umfang der Tragwerksplanung
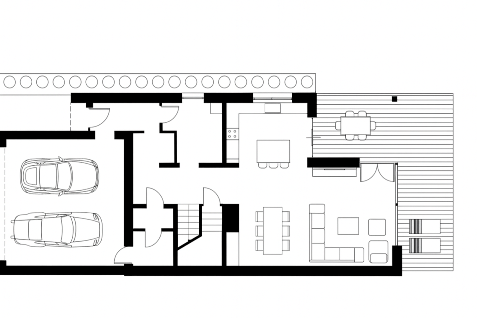
Nettofläche des Hauses ohne Heizraum, Garage
191,4 m²
Garagenbereich
34,63 m²
Bereich des Heizungsraums
3,6 m²
Fläche
229,63 m²
Bebaute Fläche
163,74 m²
Gesamtfläche
303,89 m²
Volumen
1089,5 m³
Dachfläche
114,95 m²
Höhe des Gebäudes
7,37 m
Konstruktions- und Materialvorschläge, die im Projekt verwendet werden:
Wände: Porotherm Keramik-Hohlziegel 25 cm, Mineralwolle 20 cm, Putz
Decke: Stahlbetonplatte
Dach: flache, wärmeverschweisste Dachpappe, VELUX Dachfenster
Rollläden: Aussen flächenbündig montiert
Fussbodenheizung: Einsatz in allen Wohnräumen







Neueste Beiträge

Willkommen in den 80's

design 2025

Bauträger Projekt

tiny haus

Bestseller

Designvilla

Natur Oase



