Bauträger Projekt
Projekt WA16

Projektdaten
Flächen und Abmessungen
Nettofläche: 1.348,91 m²
Nutzbare Wohnfläche : 844,35 m²
Gebäudegrundfläche: 301,67 m²
Bebaute Fläche: 1.355,85 m²
Gesamtfläche: 1.655,38 m²
Bauvolumen: 5.791,42 m³
Dachfläche: 299,50 m²
Gebäudehöhe: 12,54 m
Technik und Konstruktion
Das Gebäude wird gemäss den SIA Normen errichtet und erfüllt die aktuellen technischen Anforderungen.
Wände: Porotherm-Hohlziegel 25 cm, Wärmedämmung aus Polystyrol Termo Organika 20 cm, Aussenputz
Decke: Stahlbetonplatt
Dach: Flachdach, wärmeverschweisste Dachpappe
Zusätzliche Informationen
Das Gebäude umfasst 16 moderne Wohnungen, davon:
5 Zweizimmerwohnungen mit ca. 47 m²
3 Dreizimmerwohnungen mit ca. 52 m²
8 Dreizimmerwohnungen mit ca. 57 m²
Jede Wohnung verfügt über einen grosszügigen Balkon.
Ein Aufzug verbindet alle Etagen.
Im Untergeschoss befindet sich eine Tiefgarage mit 14 Stellplätzen sowie ein Technikraum.
Die Anlage überzeugt durch ein hervorragendes Verhältnis von nutzbarer Wohnfläche zur Nettofläche, was eine effiziente und wirtschaftliche Nutzung gewährleistet.
Eine interessante Fassadengestaltung verleiht dem Gebäude eine beeindruckende Ausstrahlung und zieht unweigerlich die Aufmerksamkeit auf sich. Moderne Details und hochwertige Veredelungsmaterialien unterstreichen den Charakter des schlichten Baukörpers. An ausgewählten Fassadenbereichen wurde eine Holzverkleidung eingesetzt, die sich harmonisch in den zweifarbigen Putz einfügt. Verglaste Balkongeländer ergänzen das Erscheinungsbild auf elegante Weise.
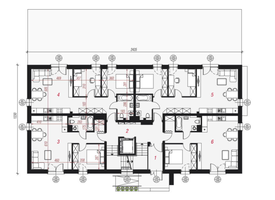
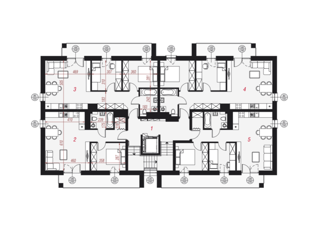
Das Gebäude umfasst insgesamt 16 Wohnungen, jeweils vier pro Etage. Im Untergeschoss befinden sich Stellplätze sowie ein Hauswirtschaftsraum. Die durchdacht geplante, funktionale Raumaufteilung garantiert den Bewohnern hohen Wohnkomfort und ermöglicht zudem eine einfache Anpassung an individuelle Bedürfnisse.
Die Trennung von Tag- und Nachtbereich ist klar strukturiert. Grosszügige Verglasungen sorgen für eine optimale natürliche Belichtung. In den Wohnzimmern ist ausreichend Platz für komfortable Ecksofas vorgesehen, separate Essbereiche sind eingeplant und die Küchen sind optimal organisiert. Jede Wohnung verfügt über mehrere Stellflächen für geräumige Einbauschränke zur Aufbewahrung von Kleidung und Haushaltsgeräten.
Die Wohnungen im Erdgeschoss bieten direkten Zugang zu den Gärten, während die Einheiten in den oberen Etagen über grosszügige Balkone verfügen. Einige dieser Balkone sind als Loggia ausgeführt, um den Bewohnern mehr Privatsphäre beim Aufenthalt im Freien zu bieten.
Für eine bequeme Erschliessung sorgt ein natürlich belichtetes Treppenhaus, zudem ist ein Aufzug vorhanden.
Das vorgestellte Projekt gehört zur Kategorie „Moderne Wohngebäude“ sowie „Mehrfamilienhäuser für Bauträger“.







Neueste Beiträge

Willkommen in den 80's

design 2025

tiny haus

Bestseller

Designvilla

Natur Oase

Hanghaus



