Bauträger Projekt
Projekt WA24

Projektdaten
Flächen und Abmessungen
Nettofläche: 1.381,66 m²
Nutzbare Wohnfläche: 1.255,16 m²
Bebaute Fläche: 572,08 m²
Grundfläche: 1.383,04 m²
Gesamtfläche: 1.708,69 m²
Gebäudevolumen: 5.568,06 m³
Dachfläche: 606,30 m²
Gebäudehöhe: 9,60 m
Technik und Bauweise
Das Gebäude wird gemäss den SIA Normen errichtet und erfüllt die aktuellen technischen Anforderungen.
Konstruktions- und Materiallösungen:
Wände: Porotherm-Keramik-Hohlziegel (25 cm), Termo Organika-Polystyrol-Dämmung (15 cm), Aussenputz
Decken: Stahlbetonplatten
Dach: Flachdach mit wärmeverschweißter Dachpappe, Dachfenster
Zusatzinformationen
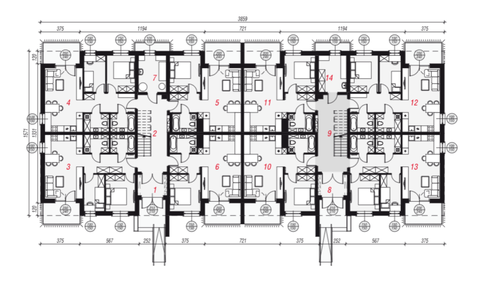
Das Projekt WA24 umfasst insgesamt 24 komfortable Wohnungen:
2-Zimmer-Wohnungen mit ca. 41 m²
3-Zimmer-Wohnungen mit ca. 54 m²
4-Zimmer-Wohnungen mit ca. 64 m²
Jede Wohnung verfügt über einen Balkon , der den Bewohnern zusätzlichen Wohnkomfort und Erholungsraum im Freien bieten.
Modernes Mehrfamilienhaus – Funktionalität trifft auf zeitgemässes Design
Dieses Projekt beschreibt ein modernes Mehrfamilienhaus mit drei oberirdischen Vollgeschossen, das auf bewährten Baukonzepten basiert. Die durchdachten Planungs- und Konstruktionslösungen ermöglichen Bauherren eine schnelle und reibungslose Realisierung der Investition.
Ein besonderes Merkmal ist das hohe Verhältnis von Wohnnutzfläche (Nutzfläche) zur Nettofläche, wodurch Investoren den maximal möglichen Ertrag aus dem Verkauf erzielen können.
Die Fassade überzeugt durch eine harmonische Komposition hochwertiger Veredelungsmaterialien: eine Kombination aus dezentem Putz und natürlicher Verkleidung verleiht dem Gebäude einen eleganten und zugleich zeitlosen Charakter. Zwei geschützte Ausseneingänge in den Arkaden bieten den Bewohnern bequemen Zugang und Schutz vor Witterungseinflüssen. Grosszügige Vorräume und helle Treppenhäuser sorgen für eine komfortable interne Erschliessung.
Das Gebäude umfasst insgesamt 24 Wohnungen mit unterschiedlichen Wohnflächen – von kompakten 41,78 m² (Zweizimmerwohnungen) bis zu grosszügigen 63,70 m² (Vierzimmerwohnungen) – und variablen Grundrissen. Grössere Wohnungen verfügen über eine zusätzliche Toilette oder einen separaten Hauswirtschaftsraum. Die funktionalen Raumaufteilungen lassen sich flexibel an individuelle Bedürfnisse anpassen.
Eine gezielte Anordnung der Fensterflächen garantiert helle, lichtdurchflutete Räume. Jede Wohnung verfügt über einen eigenen Balkon in Form einer Loggia, die zusätzlichen Sichtschutz und Privatsphäre beim Aufenthalt im Freien bietet. Zudem wurde auf ausreichend Stauraum geachtet – zahlreiche Stellflächen für Einbauschränke erleichtern die Organisation und Ordnung im Alltag. In den grösseren Wohnungen besteht ausserdem die Möglichkeit eines direkten Nebeneingangs aus der Küche.






Neueste Beiträge

Willkommen in den 80's

design 2025

Bauträger Projekt

tiny haus

Bestseller

Designvilla

Natur Oase



