Heimgefühl
Haus Gray

-Das Projekt ist eine Konzeptstudie, Grundrisse, Visualisierungen sowie eine grundlegende technische Dokumentation
-Architektur- und Bauplanung - Umfang des architektonischen Entwurfs
-Technische Planung - Umfang der Tragwerksplanung
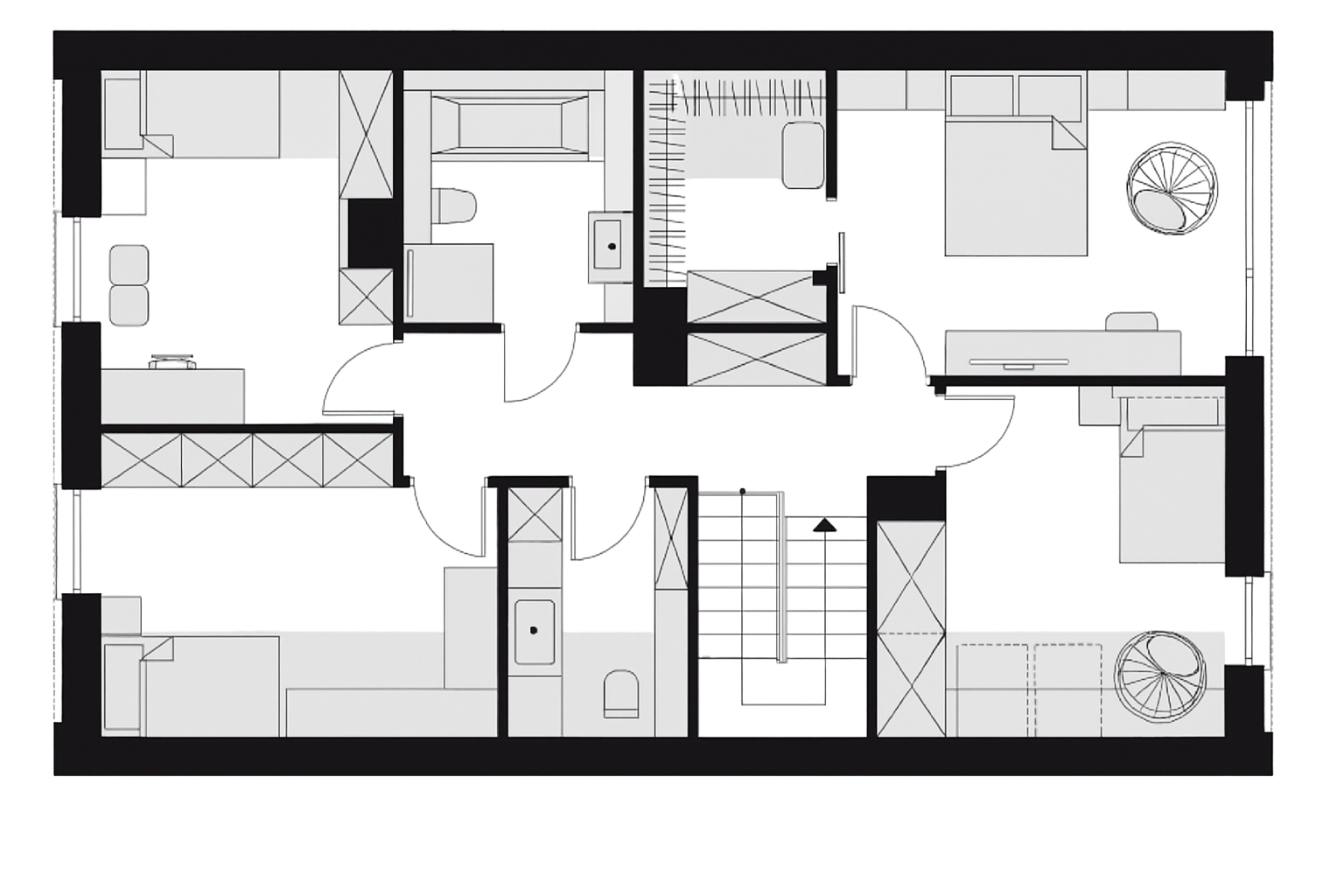
Nettofläche des Hauses ohne Heizraum, Garage
129,31 m²
Garagenbereich
19,5 m²
Bereich des Heizungsraums
4,68 m²
Nutzfläche (keine Treppen)
148,54 m²
Bebaute Fläche
116,05 m²
Gesamtfläche
230,18 m²
Volumen
739,48 m³
Dachfläche
153,1 m²
Höhe des Gebäudes
8,18 m
Konstruktions- und Materialvorschläge, die im Projekt verwendet werden:
Wände: H+H Porenbetonstein 24 cm, Termo Organika Polystyrol 20 cm, Putz
Decke: Stahlbetonplatte
Winkelwand: 103 cm
Dach: Giebel, Neigung 40 Grad, Holzbinder, CREATON Keramikfliesen, VELUX Dachfenster
Garagentor: HÖRMANN
Fussbodenheizung: Einsatz in allen Wohnräumen








Neueste Beiträge

Willkommen in den 80's

design 2025

Bauträger Projekt

tiny haus

Bestseller

Designvilla

Natur Oase



